Bạn đang tìm hiểu cách import Cad vào Revit nhưng chưa biết nên chọn link file hay import file? Đây là hai phương pháp phổ biến khi làm việc với Revit, mỗi phương pháp đều có những ưu, nhược điểm riêng phù hợp với từng mục đích sử dụng. Trong bài viết này, Unica sẽ hướng dẫn chi tiết từ việc chuẩn bị file CAD, cách liên kết hoặc import vào Revit, đến các lưu ý quan trọng giúp thao tác nhanh chóng, chính xác.
Link file CAD vào Revit
Link file CAD vào Revit là một quá trình kết nối một bản vẽ thiết kế 2D tạo ra bằng phần mềm AutoCAD (file CAD) với một mô hình 3D đang được xây dựng trên phần mềm Revit. Quá trình này cho phép người dùng kết hợp thông tin chi tiết từ bản vẽ CAD vào mô hình Revit, tạo ra một mô hình tổng thể chính xác và đầy đủ hơn. Nhờ đó, các kiến trúc sư, kỹ sư có thể dễ dàng so sánh, cập nhật và quản lý thông tin dự án một cách hiệu quả.

Link file Cad vào Revit là liên kết bản vẽ 2D với một mô hình 3D trong Revit
Import file CAD vào Revit
Import file CAD vào Revit là quá trình đưa một bản vẽ 2D thiết kế bằng phần mềm AutoCAD (file CAD) vào một dự án Revit. Khác với việc "link", khi import, file CAD sẽ được sao chép hoàn toàn vào dự án Revit, trở thành một phần của mô hình. Điều này có nghĩa là mọi thay đổi đối với file CAD gốc sẽ không ảnh hưởng đến phần đã được import vào Revit.

Import file CAD vào Revit là sao chép hoàn toàn file vào dự án Revit
Nên link file hay import file vào cad?
Nhìn chung, Khi bạn chèn dữ liệu CAD vào mô hình Revit, dữ liệu này sẽ được lưu trữ trực tiếp bên trong mô hình. Điều đó có nghĩa là ngay cả khi tệp DWG gốc bị di chuyển hoặc không còn khả dụng tại vị trí ban đầu, nội dung từ tệp DWG vẫn không bị mất trong Revit, trừ khi bạn chủ động xóa hoặc gỡ bỏ tệp này khỏi dự án.
Tệp DWG được thể hiện dưới dạng đồ họa hiển thị trong mục Danh mục đã nhập. Ngoài ra, bạn có thể chỉnh sửa các lớp của DWG, chẳng hạn như bật hoặc tắt khả năng hiển thị, thay đổi độ dày, mẫu hoặc màu đường nét, hoặc thậm chí xóa lớp.
Khi sử dụng chức năng liên kết CAD, bạn có thể theo dõi và cập nhật nội dung từ tệp DWG gốc một cách linh hoạt. Nếu tệp DWG được chỉnh sửa sau khi liên kết, bạn chỉ cần sử dụng các tùy chọn như "Tải lại" hoặc "Tải lại từ" để đồng bộ hóa nội dung mới vào mô hình Revit, tương tự như xref trong AutoCAD. Trong khi đó, nếu bạn nhập CAD, bất kỳ thay đổi nào trong tệp DWG gốc sẽ không tự động phản ánh. Để cập nhật, bạn cần xóa CAD đã nhập và thực hiện lại quá trình nhập từ đầu.
Như vậy, bạn nên sử dụng link CAD vào Revit hơn là sử dụng Import, bởi khi link vào vừa dễ dàng sử dụng mà lại còn không bị nặng file Revit

Nên sử dụng link CAD vào trong Revit thay vì import
Hướng dẫn cách link file vào cad trong revit
Chuẩn bị trước khi link file cad
Để quá trình liên kết file CAD vào Revit diễn ra một cách hiệu quả và không gặp lỗi, bạn cần chuẩn bị file CAD kỹ lưỡng bằng cách thực hiện các bước sau:
-
Bind XRefs: Xrefs có thể gây ra các lỗi không mong muốn. Hãy mở bảng Xref và bind tất cả các đối tượng, đồng thời kiểm tra để tránh trùng lặp giữa các layer.
-
Run Purge: Sử dụng lệnh Purge để loại bỏ những layer, linetype, block hoặc các đối tượng không sử dụng. Điều này giúp tối ưu hóa file CAD trước khi liên kết vào Revit.
-
Run Setbylayer: Đưa tất cả các thiết lập nét vẽ về layer mặc định và loại bỏ các thiết lập overrides như màu sắc, linetype hay lineweight. Dùng lệnh Setbylayer để xử lý nhanh chóng và đảm bảo các nét được định nghĩa chính xác.
-
Freeze Useless Layers: Đóng băng (freeze) tất cả các layer không cần thiết để tránh việc chúng làm ảnh hưởng đến mô hình khi được liên kết vào Revit.
-
Write Block: Sử dụng lệnh Write Block để xuất ra các đối tượng cần thiết cho quá trình nhập vào Revit. Cách này sẽ giúp bạn loại bỏ các layer và đối tượng không cần thiết, đảm bảo file CAD gọn nhẹ và dễ quản lý hơn trong Revit.
9 Bước link file cad vào revit
Bước 1: Mở file mặt bằng kiến trúc trong AutoCAD.
Bạn mở bản vẽ AutoCAD chứa mặt bằng kiến trúc cần liên kết với dự án Revit.

Mở bản vẽ AutoCAD chứa mặt bằng kiến trúc cần xử lý
Bước 2: Kiểm tra đơn vị đo được sử dụng trong AutoCAD
Trước khi liên kết vào Revit, bạn cần đảm bảo rằng cả hai phần mềm đều sử dụng cùng một đơn vị đo là Millimeters.
-
Nhập lệnh tắt UN và nhấn Enter.

Nhập lệnh UN rồi ấn Enter để hiển cửa sổ Drawing Units.
-
Khi cửa sổ Drawing Units xuất hiện, ở mục Insertion scale > Units to scale inserted content, đổi Inches thành Millimeters.

Tại mục Units to scale inserted content đổi từ Inches sang Millimeters
Bước 3: Mở một dự án mới trong Revit
Thực hiện thao tác mở dự án Revit mới nơi bạn sẽ liên kết mặt bằng AutoCAD.

Thực hiện mở một dự án mới trong Revit
Bước 4: Chuẩn bị lưới trục sơ bộ từ mặt bằng kiến trúc
Xem xét lưới trục trên mặt bằng kiến trúc trong AutoCAD và tiến hành vẽ lại sơ bộ lưới trục đo trong dự án Revit.

Chuẩn bị một lưới trục sơ bộ
Bước 5: Thực hiện liên kết mặt bằng AutoCAD vào dự án Revit
Vào Tab Insert, chọn Link CAD để bắt đầu thao tác liên kết bản vẽ AutoCAD.

Chọn Link CAD để bắt đầu liên kết bản vẽ
Bước 6: Chọn file AutoCAD cần liên kết.
Tìm đến vị trí lưu file AutoCAD và chọn bản vẽ mặt bằng kiến trúc muốn liên kết.

Tìm và chọn file AutoCAD cần liên kết
Bước 7: Cài đặt các tùy chọn khi liên kết file AutoCAD
Trong cửa sổ liên kết, thực hiện các thiết lập sau:
-
Colors: Chọn Preserve để giữ màu nguyên bản của file AutoCAD.
-
Layers/Levels: Chọn All để hiển thị tất cả các đối tượng trong bản vẽ.
-
Import units: Chọn Millimeter để đảm bảo đồng bộ đơn vị đo với AutoCAD.
-
Positioning: Chọn Auto – Center to Center để mặt bằng nằm chính giữa dự án.
-
Place at: Chọn Current view only để hiển thị bản vẽ tại mặt bằng hiện tại.

Điều chỉnh một số thông số trước khi liên kết file
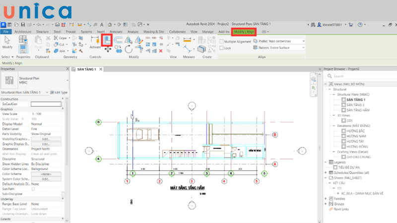
Bước 8: Điều chỉnh lưới trục trong Revit theo bản vẽ AutoCAD
Sau khi liên kết mặt bằng, sử dụng lệnh tắt AL (Align) để dời vị trí lưới trục sơ bộ trong Revit về đúng vị trí trên bản vẽ AutoCAD.

Thực hiện lệnh Align để điều chỉnh, di dời vị trí lưới trục sơ bộ trong Revit
Lưu ý: Đặt lại tên lưới trục sao cho đồng bộ giữa các phần mềm.
Bước 9: Ẩn mặt bằng kiến trúc AutoCAD sau khi hoàn tất thao tác.
-
Dùng lệnh tắt VG hoặc vào Tab View > Visibility / Graphics.

Sử dụng lệnh tắt VG hoặc thao tác trên thanh công cụ
-
Trong mục Imported Categories, bỏ chọn hai dấu tick.

Bỏ hai dấu tích trong mục Imported Categories
-
Nhấn Apply và OK để ẩn bản vẽ AutoCAD.

Ấn Apply rồi ấn OK là hoàn thành
Khi hoàn thành, dự án Revit sẽ giữ nguyên lưới trục và cấu trúc cần thiết mà không bị ảnh hưởng bởi bản vẽ gốc AutoCAD.
Kết luận
Việc nắm rõ cách import Cad vào Revit hoặc sử dụng phương pháp link file là một kỹ năng thiết yếu khi làm việc với Revit. Lựa chọn đúng cách không chỉ giúp bạn quản lý dự án hiệu quả hơn mà còn đảm bảo độ chính xác và tiết kiệm thời gian trong quá trình thiết kế. Áp dụng những kiến thức được hướng dẫn trong bài viết để nâng cao kỹ năng và tự tin hơn khi xử lý các file CAD trong Revit.

